1 Cobbler Court Wellard WA
- 4
- 2
- 2
OPPORTUNITY KNOCKS: HOMESTEAD RIDGE ACREAGE
Situated within the highly sought-after and exclusive Homestead Ridge estate, this is the first time 1 Cobbler Court has been offered to market.
Framed by established Eucalypts and fruit trees, and overlooking the serene Millar Wellard Reserve, this stunning property offers a relaxed semi-rural sanctuary that feels worlds away, yet is firmly connected to every modern convenience.
The Lifestyle: This is an unmissable private bushland retreat where birdsong is almost the only sound. Close to bush trails and Leda Nature Reserve, this property is perfect for a family who are looking for space to grow in a beautiful natural environment.
Iconic Positioning: Unique to this address within the estate, this home occupies a premium, private cul-de-sac corner position, while providing a sense of seclusion that is unique to the area.
The Workshop You've Always Wanted: A massive 25x20ft powered shed, plus two additional lean-tos, offers all the room a serious hobbyist or tradesperson could ever need.
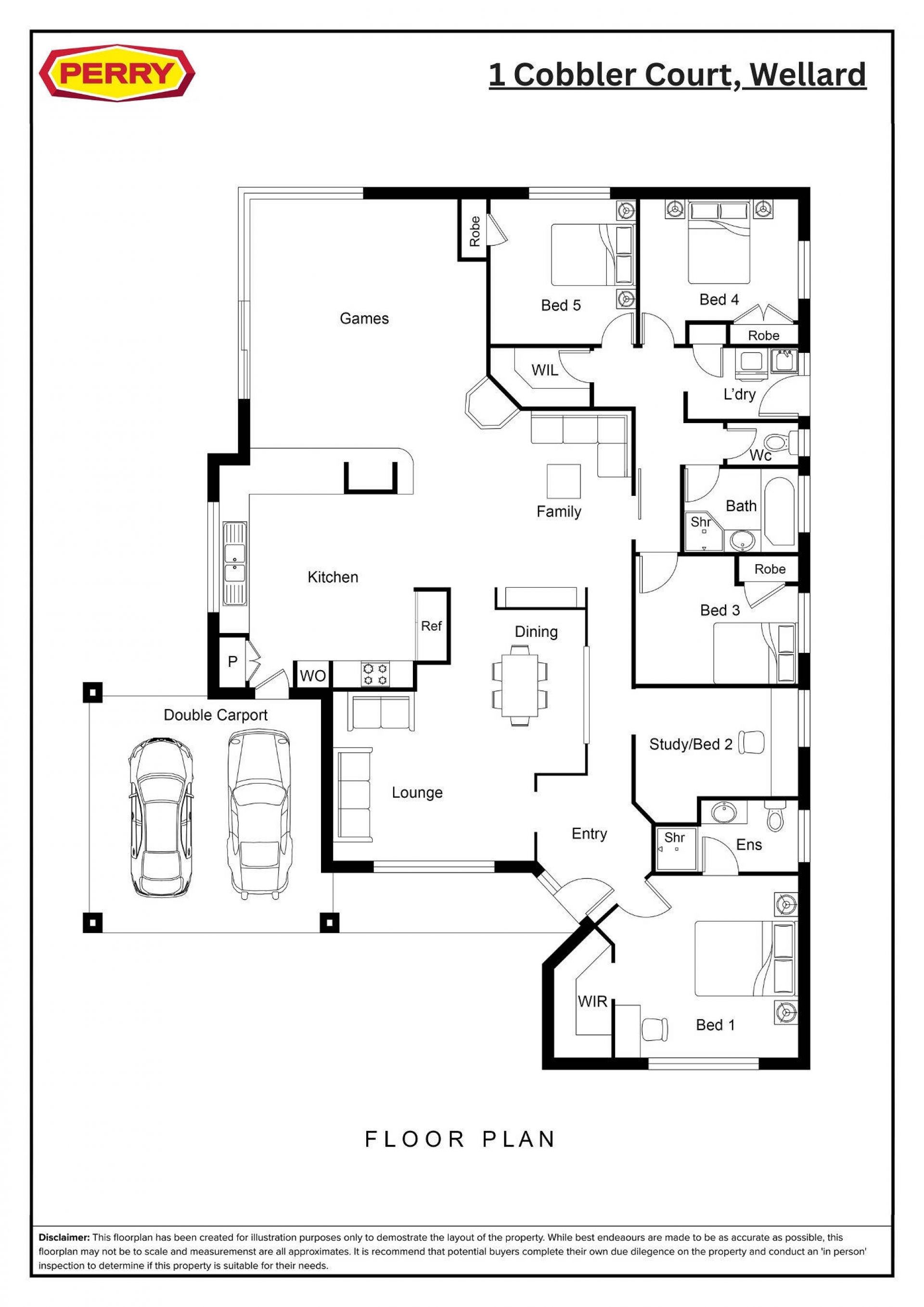
A Residence of Quality, Comfort & Potential: Step inside this substantial ~220sqm homestead residence and you'll find a home designed for a genuine growing family lifestyle.
Heart of the Home: You will love cooking and entertaining in the spacious country kitchen, featuring timeless timber cabinetry, a 5-burner La Germania gas cooktop, and a practical island bench overlooking the central living area.
Warmth and Atmosphere: Gather the family around the cosy Jarrahdale Innovator wood fire or entertain friends at the built-in bar. For quiet moments, retreat through elegant double French doors into your separate formal lounge.
Accommodation: Your master suite offers a private sanctuary at the front of the home, while the kids' wing features three generously sized minor bedrooms-all benefiting from brand-new carpet and a dedicated home office for your work-from-home needs.
Outdoor Entertaining Made Easy: Your weekends are sorted with a huge undercover patio and alfresco area. Host friends and family using the built-in pizza oven, unwind in the dedicated outdoor spa area, or simply enjoy the peace of your private courtyard.
Unbeatable Connectivity: Enjoy the best of both worlds-bushland peace with urban access:
• 3 minutes to Wellard Square Shops and the Wellard Train Station.
• 5 minutes' drive to the beach or Kwinana Town Centre.
• 35 minutes' drive to the Perth CBD.
Complete with 8 solar panels, ducted evaporative air conditioning and mains gas connection, this high-quality residence is move-in ready. Don't miss your chance to secure this rare "one-owner" gem in a premier location.
Please contact Jane Carew-Reid to arrange your private viewing and start envisioning your future at 1 Cobbler Court.
Framed by established Eucalypts and fruit trees, and overlooking the serene Millar Wellard Reserve, this stunning property offers a relaxed semi-rural sanctuary that feels worlds away, yet is firmly connected to every modern convenience.
The Lifestyle: This is an unmissable private bushland retreat where birdsong is almost the only sound. Close to bush trails and Leda Nature Reserve, this property is perfect for a family who are looking for space to grow in a beautiful natural environment.
Iconic Positioning: Unique to this address within the estate, this home occupies a premium, private cul-de-sac corner position, while providing a sense of seclusion that is unique to the area.
The Workshop You've Always Wanted: A massive 25x20ft powered shed, plus two additional lean-tos, offers all the room a serious hobbyist or tradesperson could ever need.
A Residence of Quality, Comfort & Potential: Step inside this substantial ~220sqm homestead residence and you'll find a home designed for a genuine growing family lifestyle.
Heart of the Home: You will love cooking and entertaining in the spacious country kitchen, featuring timeless timber cabinetry, a 5-burner La Germania gas cooktop, and a practical island bench overlooking the central living area.
Warmth and Atmosphere: Gather the family around the cosy Jarrahdale Innovator wood fire or entertain friends at the built-in bar. For quiet moments, retreat through elegant double French doors into your separate formal lounge.
Accommodation: Your master suite offers a private sanctuary at the front of the home, while the kids' wing features three generously sized minor bedrooms-all benefiting from brand-new carpet and a dedicated home office for your work-from-home needs.
Outdoor Entertaining Made Easy: Your weekends are sorted with a huge undercover patio and alfresco area. Host friends and family using the built-in pizza oven, unwind in the dedicated outdoor spa area, or simply enjoy the peace of your private courtyard.
Unbeatable Connectivity: Enjoy the best of both worlds-bushland peace with urban access:
• 3 minutes to Wellard Square Shops and the Wellard Train Station.
• 5 minutes' drive to the beach or Kwinana Town Centre.
• 35 minutes' drive to the Perth CBD.
Complete with 8 solar panels, ducted evaporative air conditioning and mains gas connection, this high-quality residence is move-in ready. Don't miss your chance to secure this rare "one-owner" gem in a premier location.
Please contact Jane Carew-Reid to arrange your private viewing and start envisioning your future at 1 Cobbler Court.
Features
- Study
- Living Area
- Air Conditioning
- Built-ins
- Fireplace(s)
- Area Views
- Bush Retreat
- Car Parking - Surface
- Carpeted
- Close to Schools
- Close to Shops